おすすめポイント
- 海抜約130mの高台から広がる、東海岸を望むパノラマオーシャンビュー
- 駐車場率174%。ほぼ全世帯で車2台、または車+バイクの駐車が可能
- 内装や設備は多彩な色や柄から選べる豊富なカラーセレクトプラン
太陽と緑が調和する街、南上原。
海抜130m、地上14階に暮らす心のゆとり。
この場所で迎える朝は、いつも“はじまり”の光に満ちています。
オリエンス――東から射す一筋の光のように、ここでの暮らしは、新しい未来へ続く扉をそっと開いてくれる。
アーバンパレット オリエンス南上原は、そのはじまりを穏やかに、確かに照らす場所です。
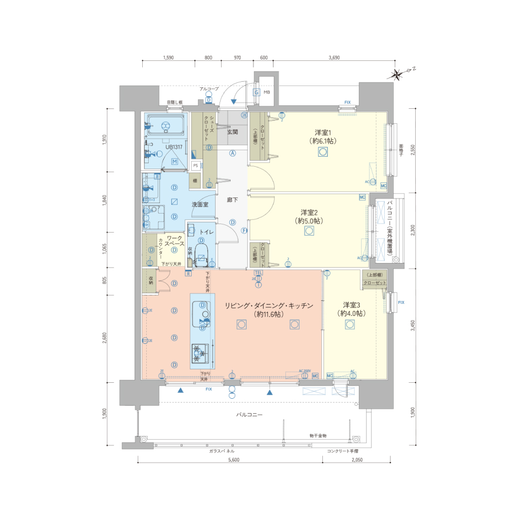
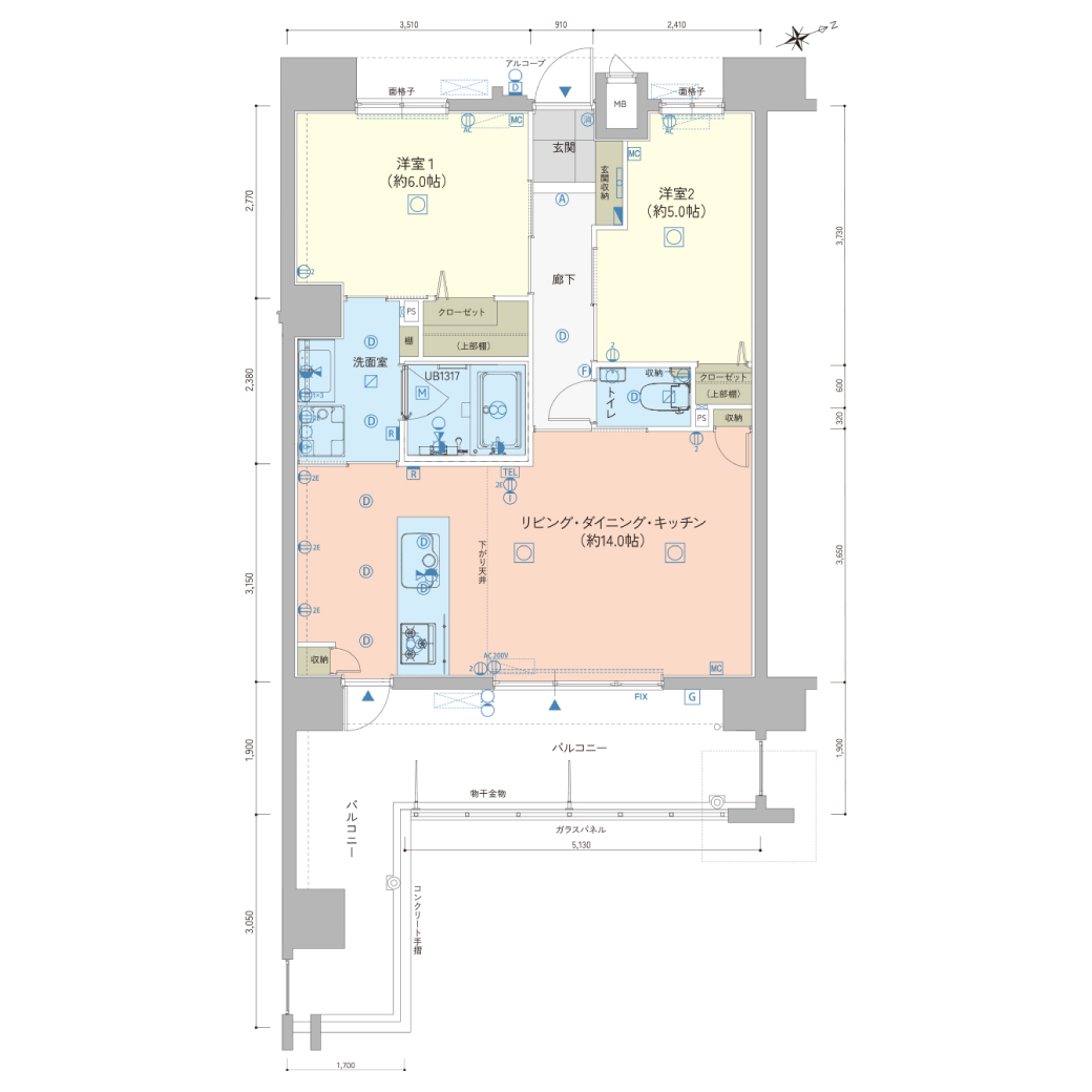
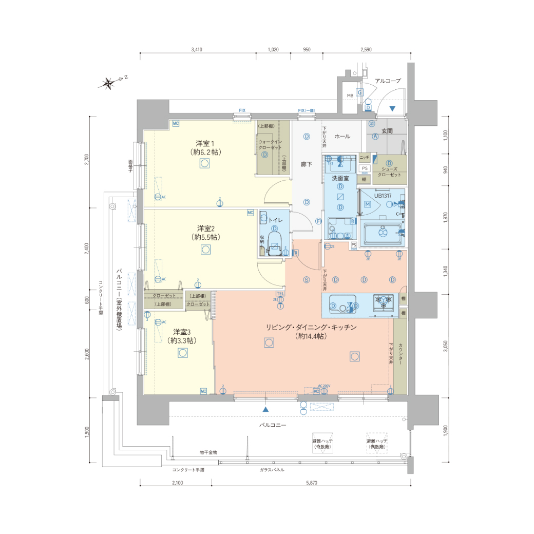
間取り
インスタグラムでもチェック
立地・周辺環境
県道29号線が支える、快適な暮らし。
朝、通りに並ぶパン屋やカフェが一日のはじまりを整え、夕方、スーパーや飲食店の灯りが「おかえり」と迎えてくれます。
子どもたちが向かう学校もほど近く、家族の時間は、無理なく、自然に豊かに流れていく。利便さと安心が、一本の道にやわらかく重なる。そんな暮らしが、南上原にはあります。
-
中城みなみ保育園・幼稚園 約400m/徒歩約5分
-
きらら保育園 約450m/徒歩約6分
-
中城南小学校 約400m/徒歩約5分
-
琉球大学附属小学校 約1.5km/車で約6分
-
琉球大学附属中学校 約1.5km/車で約6分
-
サンエーなかぐすく店 約270m/徒歩約4分
-
フレッシュプラザユニオン中城店 約270m/徒歩約4分
-
うえむら病院 約450m/徒歩約6分
標準仕様
-
キレイが続く人造大理石シンク
大理石タイプで汚れにくく、スキマがないからおそうじラクラク、サッとふくだけでキレイが保てます。
-
たっぷりスッキリスムーズ収納
コンロ下、シンク下は大容量の収納庫。開閉がスムーズなソフトクロージング機能です。
-
フラッグストーンフロア
汚れにくく乾きやすいので、簡単な掃除でキレイをキープ!
-
ヒーターレスでくもらないミラー
鏡の表面に吸収性・親水性のある膜をコーティング。電気代ゼロでいつでもクリア!
-
マルチシングルレバーシャワー水栓
片手で楽に温度調整ができ、吐水部も左右に首振り可能。スペースを有効活用できます。
販売概要
アーバンパレットオリエンス南上原 第二期
- 販売スケジュール
- 先着順申込受付中
申込受付時間/10:00AM~7:00PM
申込受付場所/「アーバンパレットオリエンス南上原」マンションギャラリー
※申込の際は印鑑(認印)、本人確認書類(運転免許証、健康保険証、パスポート等の原本)、収入証明書(前年分源泉徴収票又は直近2年分の確定申告書写し)をお持ち下さい。
- 完成時期
- 2027年10月中旬予定
- 引渡可能時期
- 2027年12月中旬予定
- 販売戸数
- 11戸
- 価格
- 3423万円~4940万円
- 最多価格帯
- 4600万円台(2戸)
- 管理費
- 5400円~6400円/月
- 修繕積立金
- 7700円~9000円/月
- 修繕積立基金
- 62万円~72万7000円(一括払い)
- 間取り
- 2LDK~3LDK
- 専有面積
- 56.44㎡~66.15㎡
- その他面積
- バルコニー面積:15.23㎡~22.05㎡、アルコーブ面積:1㎡~2㎡
- 制限事項
- 中城村南上原地区土地区画整理地域、中城村南上原地区地区計画区域
- 取引条件有効期限
- 2026/05/31
物件概要
- 物件名
- アーバンパレットオリエンス南上原
- 所在地
- 沖縄県中頭郡中城村字南上原609-1、609-2、549-1、549-2
- 交通
- 中城南小学校前(那覇向け)バス停(約250m/徒歩約4分)
- 地域・地区
- 第1種中高層住居専用地域・第1種低層住居専用地域
中城村南上原地区土地区画整理地域、中城村南上原地区地区計画区域
- 建ぺい率
- 法定加重平均(57.67%※角地適用により67.67%)、対象(20.89%)
- 容積率
- 法定加重平均(188.35%)、対象(187.47%)
- 敷地面積
- 1,311.49㎡(建築確認面積)
- 分譲後の権利形態
- 専有面積持分比率による共有(所有権)
- 建築面積
- 273.84㎡
- 延べ床面積
- 2,887.56㎡
- 構造・規模
- 鉄筋コンクリート造、14階建て
- 総戸数
- 39戸
- 建築確認番号
- 第沖確R07120172号
- 着工
- 2026年1月中旬
- 竣工予定
- 2027年10月中旬予定
- 入居開始予定
- 2027年12月中旬予定
- 取引条件有効期限
- 2026/3/31
※本概要書については、施工上の理由・行政の指導等により変更となる場合があります。予めご了承ください。
※価格は物件の代金総額を表示しています。(税込み価格を表示)
※「モデルルーム」とは、間取りや仕様・設備などを知ることができる施設全般を指し、それらの一部のみ展示している「コンセプトルーム」や「ギャラリー」、「インフォメーションセンター」なども含みます。
※完成予想図はいずれも外構、植栽、外観等実際のものとは多少異なる場合があります。
※掲載のVRは実際とは多少異なる場合があります。
※VR上でカラーセレクトができるのはCGVRのみです。
※VRで演出しているインテリア等はオプション(有料)商品が含まれております。
※掲載の参考写真・参考イラスト・概念図については、実際のものとは多少異なります。
※掲載の環境写真は2021年に撮影したものです。
※表示の距離は現地から地図上の概則距離です。徒歩分数は80m/1分として算出し、端数は切り上げています。また車分数は(GoogleMap2025年12月11日12:00出発)で計測し、渋滞、信号待ち等の時間は含まれておりません。
※完成後1年以上を経過した未入居物件が掲載される場合があります。
- 会社情報
-
<事業主・売主> 株式会社沖建住宅(沖縄県那覇市首里石嶺四丁目51番地2 TEL.098-885-8200)<販売提携(代理)> 株式会社沖拓建設(沖縄県那覇市首里石嶺四丁目51番地2、2階 TEL.098-917-2656)
株式会社Teach Plus(沖縄県那覇市松島1丁目15番5号 メゾンシュエット101 TEL.098-882-1001)
- 施工
-
株式会社謝花組
- 管理
-
株式会社穴吹ハウジングサービス
