ワイズエステムコート The Okinawa 県庁前

県庁と国際通りに寄り添う唯一無二(※1)の新築マンション。

価格 4,600万円~8,600万円
  • 専有面積
    38.88㎡~66.83㎡
  • 間取り
    1LDK2LDK
  • 所在地
    沖縄県那覇市松尾1丁目205-4
  • こんな人におすすめ
    • #セカンドハウス
    • #ファミリー
    • #単身
    • #夫婦
    • #投資
  • おすすめポイント
    • #10階以上の高層
    • #ZEH-M(ゼッチマンション)
    • #コンビニ近い
    • #シューズインクローゼットあり
    • #特別住戸あり
    • #駅近

電話でまとめて資料請求

0120-78-8131

電話でまとめて資料請求

おすすめポイント

  1. ゆいレール「県庁前」駅徒歩5分。 那覇空港へもスムーズアクセス、出張や旅行も快適に。
  2. 約38㎡〜86㎡超まで、ライフスタイルに応える多彩なプランをご用意。
  3. GWキャンペーン開催中! 5/31(日)まで 大抽選会実施中。

Your Story in Okinawa
大人の好奇心を刺激する時間が、
いつもそばに

沖縄の雄大な自然を全身で感じながら、
ダイビングやゴルフで気持ち良くカラダを動かす。
好奇心を心地よく刺激するアクティビティが、
この島に住まう歓びを高めていく。

間取り

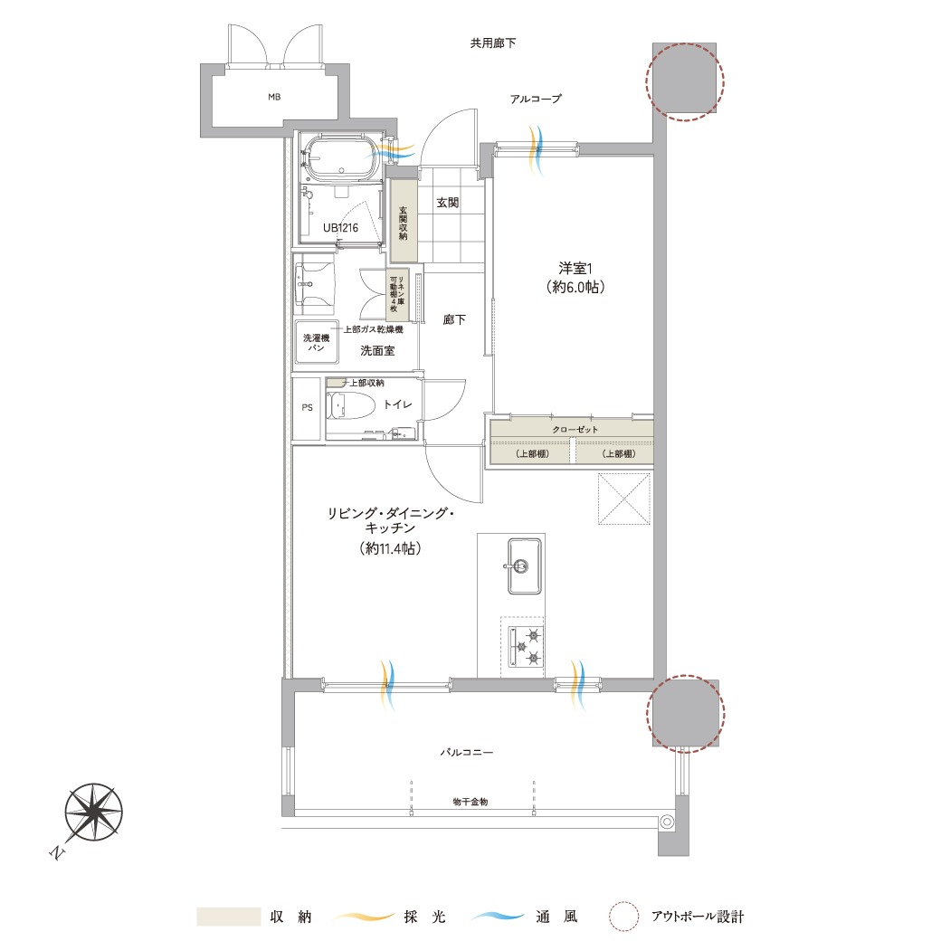
  • 間取りタイプ名
    B type
    間取り
    1LDK+WIC+SIC
    住居専有面積
    38.88㎡ (約11.76坪)
    バルコニー面積
    [2階]19.85m²(6.00坪) [3~13階]9.60m²(2.90坪)
    アルコーブ面積
    3.27m²(0.98坪)
  • 間取りタイプ名
    C type
    間取り
    1LDK
    住居専有面積
    42.84㎡ (約12.95坪)
    バルコニー面積
    [2階]22.22m²(6.72坪) [3~13階]11.54m²(3.49坪)
    アルコーブ面積
    5.62m²(1.70坪)
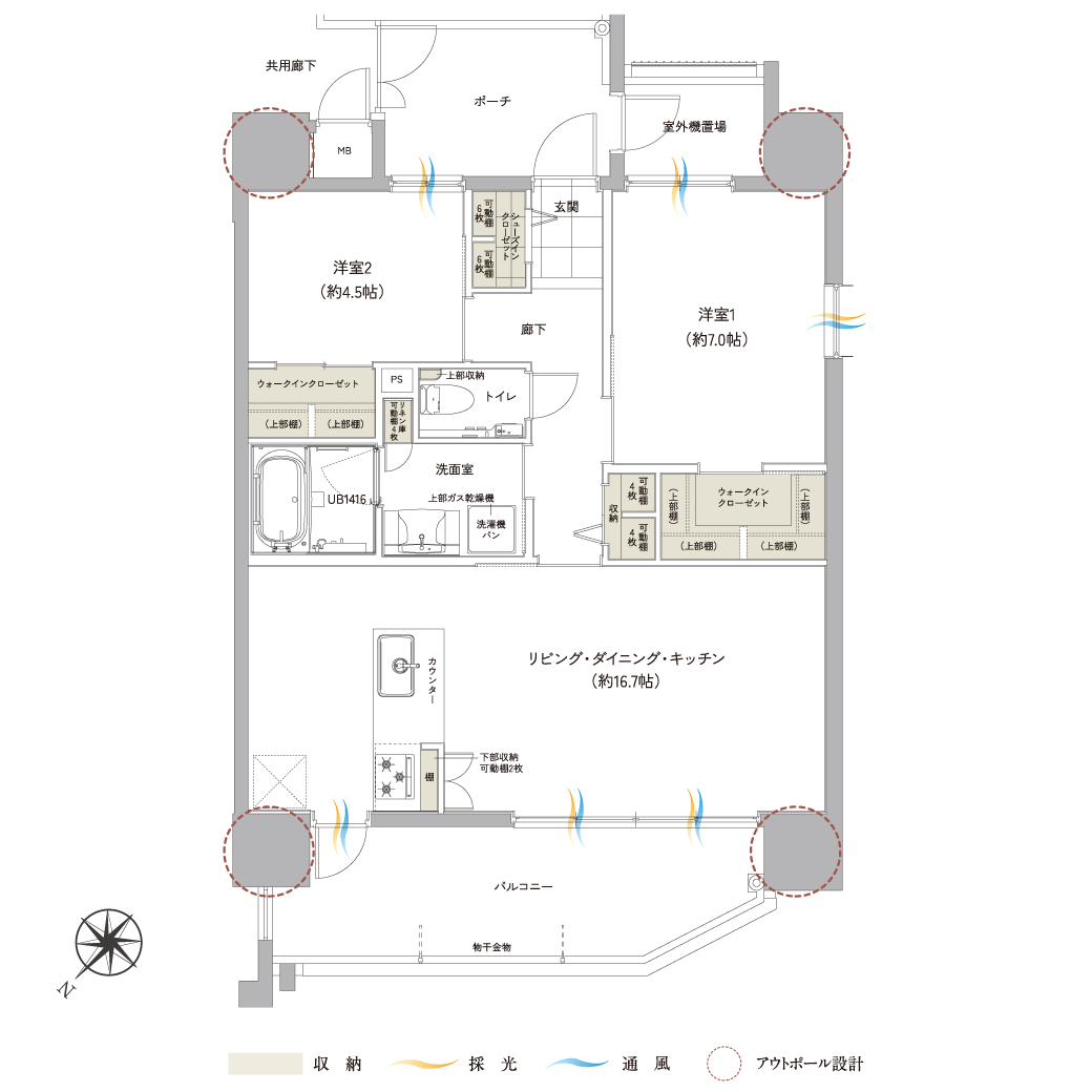
  • 間取りタイプ名
    D type
    間取り
    2LDK+2WIC+SIC +ポーチ
    住居専有面積
    66.83㎡ (約20.21坪)
    ポーチ面積
    7.15m²(2.16坪)
    バルコニー面積
    12.73m²(3.85坪)

立地・周辺環境

国際通り、目の前
華やかなショッピングストリートへ

沖縄の玄関口というべきショッピングストリート「国際通り」へ徒歩3分。
毎週日曜日には歩行者優先道路となる「トランジットマイル」が開催され、
オープンカフェやストリートパフォーマンスなどのイベントでさらに賑わい豊かな光景を織りなす。

  • パレットくもじ 徒歩4分(約300m)

  • 那覇オーパ 徒歩9分(約670m)

  • セブン-イレブン 国際通OTSビル店 徒歩4分(約280m)

  • ドン・キホーテ 国際通り店 徒歩10分(約780m)

  • 那覇市役所 徒歩4分(約300m)

標準仕様

  • ユーティリティシンク

    3層の⽴体的なシンクで「洗う」+「調理する」+「⽚付ける」の作業が効率的になります。 また、業界トップレベルの静⾳仕様で、⽔はねの⾳やスプーン等の落下⾳を低減します。

  • 食器洗い乾燥機(ストリーム除菌洗浄)

    優れた基本性能を備えたベーシックモデル。 ストリーム除菌洗浄は、50℃以上の高温・高圧水流で、洗い・すすぎ工程における除菌試験の結果は99%以上(乾燥のみの設定では除菌できません)。いつでも手洗い以上の安心感をお届けします。

  • コンフォートウエーブシャワー

    TOTO独自のノズルで大粒の水玉をスイングしながら勢いよく吐水。スプレーシャワーとの組み合わせで、節水しながら心地よい浴び心地を実現。

  • カラリ床

    タテヨコに規則正しく刻まれた特殊パターンが、表面の水を誘導。翌朝にはカラリと乾き、靴下のまま入っても大丈夫。お掃除も楽々です。

  • 三面鏡タイプ洗面ドレッサー

    メイクに便利な三面鏡タイプ。 鏡の裏は収納スペースになっており化粧品などの小物類がスッキリ整理できます。 また鏡はお風呂上りでも曇りにくい工夫が施されています。

  • 乾太くん(ガス衣類乾燥機)

    天日干しの後も、乾太くんで乾燥させることで衣類に付着した花粉中のアレル物質を除去。 短時間運転で、経済的に清潔な衣類に仕上げます。 帰宅後の衣類のお手入れにも使えます。

  • 使う前のひと工夫「プレミスト」

    便座に座ると、自動でプレミストをふきつけます。 水と相性のよいセフィオンテクトだからミストが便器表面に広がることで、汚れをつきにくく、落ちやすくします。

モデルルーム案内

住所
〒900-0005 那覇市天久1丁目26-22
営業時間
10:00~19:00
定休日
火・水曜定休/祝日を除く

販売概要

第二期販売概要

販売戸数
10戸
専有床面積
38.88㎡~66.83㎡
バルコニー面積
9.60㎡~20.04㎡
ポーチ面積
5.74㎡~7.38㎡
アルコーブ面積
3.27㎡~5.62㎡
間取り
1LDK、2LDK
販売価格(税込)
4,600万円(1戸)~8,600万円(1戸)
最多価格帯
8,000万円台(2戸)
管理費(月額)
6,800円~11,690円
修繕積立金(月額)
4,660円~8,010円
修繕積立基金(一括)
372,800円~640,800円
情報登録日
2026年4月3日
次回更新予定日
2026年4月30日
取引条件有効期限
2026年4月30日

物件概要

物件名
ワイズエステムコート The Okinawa 県庁前
所在地
沖縄県那覇市松尾1丁目205-4
交通
ゆいレール「県庁前」駅 徒歩5分(約400m)
地域・地区
商業地域、第1種住居地域
建築確認番号
第ERI-25022762号 2025年(令和7年10月23日)
構造・規模
鉄筋コンクリート造、地下1階、地上14階建
総戸数
48戸
敷地面積
672.42㎡
建築面積
392.42㎡
建ペイ率
80.00%(法定)、58.36%(対象)
容積率
400.00%(法定)、393.40%(対象)
権利形態
敷地は専有床面積割合による共有、建物専有部分は区分所有権、建物共用部分は専有床面積割合による共有
管理形態
区分所有者全員により管理組合を設立し、管理会社に委託
管理員の勤務形態
通勤管理方式(日勤)
駐車場
38区画月額使用料:8,000円~18,000円
駐輪場
5区画 月額使用料:500円~2,000円
着工
2026年2月10日
竣工予定
2028年2月上旬
入居開始予定
2028年3月上旬
手付金等保証機関
全国不動産信用保証株式会社
設計図書閲覧場所
エールクリエイト株式会社(竣工後は管理室)

※1:ワイズエステムコート The Okinawa 県庁前は、ゆいレール「県庁前」駅徒歩5分圏内の唯⼀のマンションブランドです。また、本物件は同エリア内で7年ぶりの新築分譲マンションです。
※価格は物件の代金総額を表示しています。(税込み価格を表示)
※「モデルルーム」とは、間取りや仕様・設備などを知ることができる施設全般を指し、それらの一部のみ展示している「コンセプトルーム」や「ギャラリー」、「インフォメーションセンター」なども含みます。
※完成予想図はいずれも外構、植栽、外観等実際のものとは多少異なる場合があります。
※掲載のVRは実際とは多少異なる場合があります。
※VR上でカラーセレクトができるのはCGVRのみです。
※VRで演出しているインテリア等はオプション(有料)商品が含まれております。
※掲載の参考写真・参考イラスト・概念図については、実際のものとは多少異なります。
※掲載の環境写真は2025年9月に撮影したものです。
※表示の距離は現地から地図上の概則距離です。徒歩分数は80m/1分として算出し、端数は切り上げています。また車分数は一般道を時速40kmで算出し、渋滞、信号待ち等の時間は含まれておりません。
※完成後1年以上を経過した未入居物件が掲載される場合があります。

会社情報
<事業主・売主> 株式会社日商エステム
〒542-0081 大阪府大阪市中央区南船場2丁目9番14号
TEL06(7660)1155(代表)
宅地建物取引業免許証番号/国土交通大臣(5)第7029号
一級建築士事務所 大阪府知事登録(ヘ)第17185号
<販売提携(代理)> エールクリエイト株式会社
〒900-0012 沖縄県那覇市泊1丁目11番地9
TEL098(860)2929(代表)
宅地建物取引業免許証番号/国土交通大臣(3)第8803号
(一社)九州不動産公正取引協議会
(公社)全国宅地建物取引業協会
(公社)全国宅地建物取引業保証協会
(公社)沖縄県宅地建物取引業協会
施工
株式会社IMI CORPORATION
管理
エール管理サービス株式会社