おすすめポイント
- 那覇ICも新都心もすぐそこ。暮らしに便利な好立地。
- 全邸平置駐車場2台無料
- 2025年3月完成。棟内モデルルーム公開中!
XValue クロスバリュー 変わらない価値をあなたへ
自由と理想がクロスする、快適な暮らしがここから始まる。
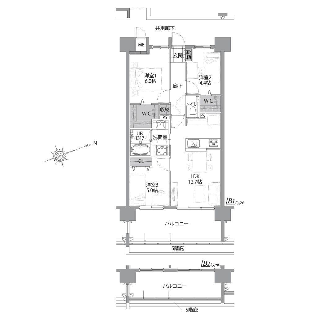
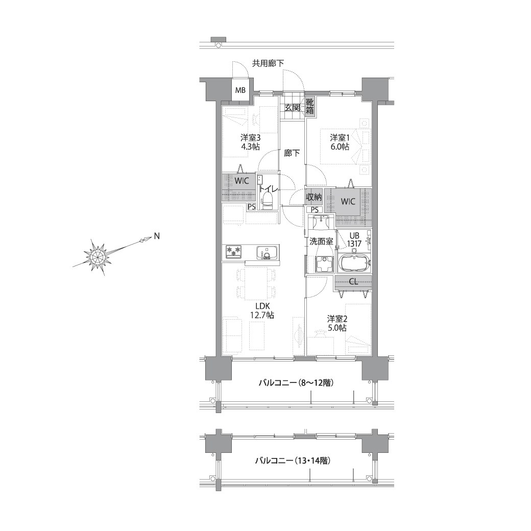
間取り
インスタグラムでもチェック
立地・周辺環境
City & Resort 都心へ、リゾートへ。
那覇県庁エリアや久茂地ビジネス街、那覇空港へもスムーズアクセス。
休日には中・北部へ、リゾートやドライブで家族とのひと時を愉しむ。
また、生活ロードとして活用する国道58号や国体道路へも自在にアクセス。
様々なライフシーンを彩る羨望のポジションは、あなたの日常に、活気とゆとりをもたらします。
-
城西小学校 徒歩約15分(約1,200m)
-
松城中学校 徒歩約7分(約560m)
-
コープ寒川 徒歩約3分(約220m)
-
ファミリーマート首里寒川一丁目店 徒歩約1分(約80m)
-
首里寒川郵便局 徒歩約2分(約160m)
-
那覇市役所 車で約14分(約3,400m)
-
南部医療センター・こども医療センター 車で約7分(約2,200m)
-
首里城下町クリニック 徒歩約1分(約80m)
-
ゆいレール「おもろまち駅」 車で約6分(約2.2km)
-
那覇IC 車で約5分(約1.7km)
標準仕様
-
アクリル人造大理石天板
人造大理石ならではの落ち着いた雰囲気と滑らかな質感により、上質なキッチンを創ります。 美しさに加え、耐久性・清掃性にも優れた100%アクリル製「アクシーマシリーズ」よりお選びください。
-
レンジフード / ホーロー整流板
すきま風現象を利用した整流板の効果により、吸引力がさらにUP。高品位ホーローを採用しているので、油汚れも簡単に拭き取れます。
-
コンフォートウェーブシャワー
TOTO独自のノズルで大粒の水玉をスイングしながら勢いよく吐水。節水しながらも適度な刺激感のある浴び心地を楽しめます。
-
スクエアボウル一体型人工大理石天板
天板とボウルの継ぎ目のない一体型カウンタートップ。スクエアなボウル形状と艶有りアクリル天板が高級感を演出します。
-
ガス衣類乾燥機
雨季や、潮風の強い日にも安心のガス衣類乾燥機。大容量タイプだから、お洗濯物もストレスフリーで乾かせます。
-
激落ちバブル
流すたびに、「2種類の泡」と「パワフルな水流」でしっかりおそうじします。
販売概要
- 販売戸数
- 6戸(イーストタワー棟6戸・サウスレジデンス棟0戸)
- 専有床面積
- 64.61㎡(約19.54坪)
- バルコニー面積
- 12.4㎡(約3.75坪)〜14.88㎡(約4.5坪)
- 間取り
- 2LDK+S、3LDK
- 販売価格
- 4,350万円〜4,690万円(税込)
- 管理費(月額)
- 16,700円
- 修繕積立金(月額)
- 8,800円
- 修繕積立基金(一括)
- 528,000円
- 取引条件の有効期限
- 2025年10月31日
- 情報公開日
- 2025年10月7日
- 次回の更新予定日
- 2025年11月4日
物件概要
- 物件名称
- コンフォート那覇松川Suiクロスゲート
- 所在地
- 沖縄県那覇市松川三丁目149番1(地番)
- 交通
- 寒川バス停約50m(徒歩約1分)
- 地目
- 宅地
- 建ぺい率・容積率
- 70%(角地による緩和あり)/200%
- 用途地域
- 第一種中高層住居専用地域、第二種中高層住居専用地域
- 敷地面積
- 2,723.74㎡(約823.93坪)登記簿面積
- 建築確認対象敷地面積
- 2,718.35㎡(約822.30坪)
- 建築面積
- 【建築確認申請面積】1,602.66㎡(約484.80坪)
【計画変更面積】1,278.90㎡(約386.86坪)
- 建築延床面積
- 【建築確認申請面積】7,232.43㎡(約2,187.81坪)
【計画変更面積】6,908.67㎡(約2,089.87坪)
- 容積率対象延床面積
- 【建築確認申請面積】5,305.05㎡(約1,604.77坪)
【計画変更面積】5,315.31㎡(約1,607.88坪)
- 建築確認番号
- JCIA確認23第00035号(令和5年7月14日)
- 計画変更確認番号
- JCIA確認23第00035号(02)(令和6年6月17日)
- 構造/規模
- 鉄筋コンクリート造/イーストタワー棟(地上14階建)・サウスレジデンス棟(地上7階建)
- 総戸数
- 74戸(イーストタワー棟62戸・サウスレジデンス棟12戸)
- 学校区
- 那覇市立城西小学校・那覇市立松城中学校
- 竣工日
- 2025年(令和7年)3月3日
- 入居開始日
- 即入居可(諸手続き完了後)
- 管理形態
- 区分所有者全員により管理組合を結成し、管理会社に委託(管理員巡回方式)
- 駐車場
- 148台(平置110台 縦列38台)2台無料
- バイク駐輪場
- 平置8台(月額使用料:1,000円)
- 自転車駐輪場
- 平置5台(月額使用料:300円)
※価格は物件の代金総額を表示しています。(税込み価格を表示)
※「モデルルーム」とは、間取りや仕様・設備などを知ることができる施設全般を指し、それらの一部のみ展示している「コンセプトルーム」や「ギャラリー」、「インフォメーションセンター」なども含みます。
※完成予想図はいずれも外構、植栽、外観等実際のものとは多少異なる場合があります。
※掲載のVRは実際とは多少異なる場合があります。
※VR上でカラーセレクトができるのはCGVRのみです。
※VRで演出しているインテリア等はオプション(有料)商品が含まれております。
※掲載の参考写真・参考イラスト・概念図については、実際のものとは多少異なります。
※掲載の環境写真は2023年5月に撮影したものです。
※表示の距離は現地から地図上の概則距離です。徒歩分数は80m/1分として算出し、端数は切り上げています。また車分数は通常要すると考えられる時間を表示したものです。渋滞、信号待ち等の時間は含まれておりません。
※完成後1年以上を経過した未入居物件が掲載される場合があります。
- 会社情報
-
<事業主・売主> 株式会社 東豊
〒901-2121 沖縄県浦添市内間1-10-7 TEL.098-875-3115 沖縄県知事(3)第4390号
(公社)沖縄県宅地建物取引業協会・(公社)全国宅地建物取引業保証協会・(一社)沖縄住宅産業協会<販売提携(代理)> 株式会社 長谷工アーベスト
〒810-0073 福岡県福岡市中央区舞鶴1-8-33
TEL:092-724-1771
国土交通大臣(11)第3175号
(一社)不動産協会(一社)不動産流通経営協会(公社)首都圏不動産公正取引協議会
株式会社 ラナプラス沖縄
〒901-1304 沖縄県島尻郡与那原町字東浜24番地3 Lana東浜タウン
TEL:098-894-5550
沖縄県知事(1)第5244号
(公社)沖縄県宅地建物取引業協会 (公社)全国宅地建物取引業保証協会
株式会社 ソリーゾ沖縄
〒901-2126 沖縄県浦添市宮城5-11-6
TEL:098-988-6543
沖縄県知事(1)第5874号
(公社)沖縄県宅地建物取引業協会 (公社)全国宅地建物取引業保証協会
- 施工
-
株式会社東江建設
- 管理
-
株式会社長谷工コミュニティ沖縄
